MALL COMERCIAL EL VAQUIANO
El Mall Comercial El Vaquiano es un desarrollo integral concebido por Proyectos10 como un espacio estratégico que integra comercio, turismo, transporte y servicios complementarios en una sola experiencia.
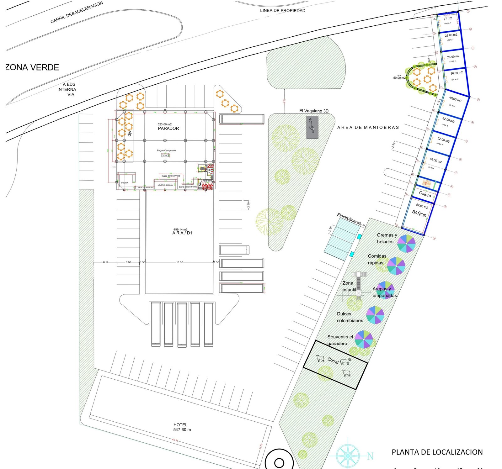
Ubicado en una zona de alto flujo vehicular, el proyecto está diseñado para atender las necesidades del turista, la comunidad local y el sector de transporte pesado, ofreciendo comodidad, abastecimiento, descanso y oportunidades comerciales en un entorno moderno y funcional.
Componente Comercial
Local ancla de 500 m²
Espacio ideal para marcas de alto reconocimiento como supermercados de cadena (D1 o Ara), que garantizan tráfico constante y dinamización comercial.Restaurante tipo parador “Rancherito” – 590 m²
Concepto gastronómico amplio, pensado como punto de encuentro familiar y parada estratégica para viajeros y transportadores.8 locales multipropósito (35 m² aprox.)
Espacios versátiles para emprendimientos, comercio especializado y servicios complementarios.Zona de exhibición comercial tipo stand
Área destinada a la promoción y venta de souvenirs, comidas rápidas, dulces colombianos y productos locales, fortaleciendo la identidad regional y el turismo.Cajero electrónico
Servicio financiero esencial para visitantes y usuarios del mall.
Infraestructura de Servicios
Electrolinera (zona de carga para vehículos eléctricos)
Infraestructura moderna que responde a la transición energética y posiciona el proyecto como referente en sostenibilidad.Hotel
Servicio de hospedaje diseñado para viajeros y transportadores que requieren descanso seguro y cómodo.Zona verde con juegos infantiles
Espacio recreativo para familias, que complementa la experiencia del visitante.
Avances 3 de marzo 2026
0:16
0:16
0:16
